Zagreb Blato kuća u nizu B1 NKP 108 m2 NOVOGRADNJA 159-1
- 350,000€
Opis
Zagreb, općina Blato, u blizini Arena Centar, moderan, obiteljski projekt u početnoj fazi izgradnje sa 6 dvojnih objekata odnosno kuća u nizu.
Projekt je zamišljen kao koncept mini naselja dok bi svaka kuća imala pripadajući parking i vrt od 24 – 37 m2.
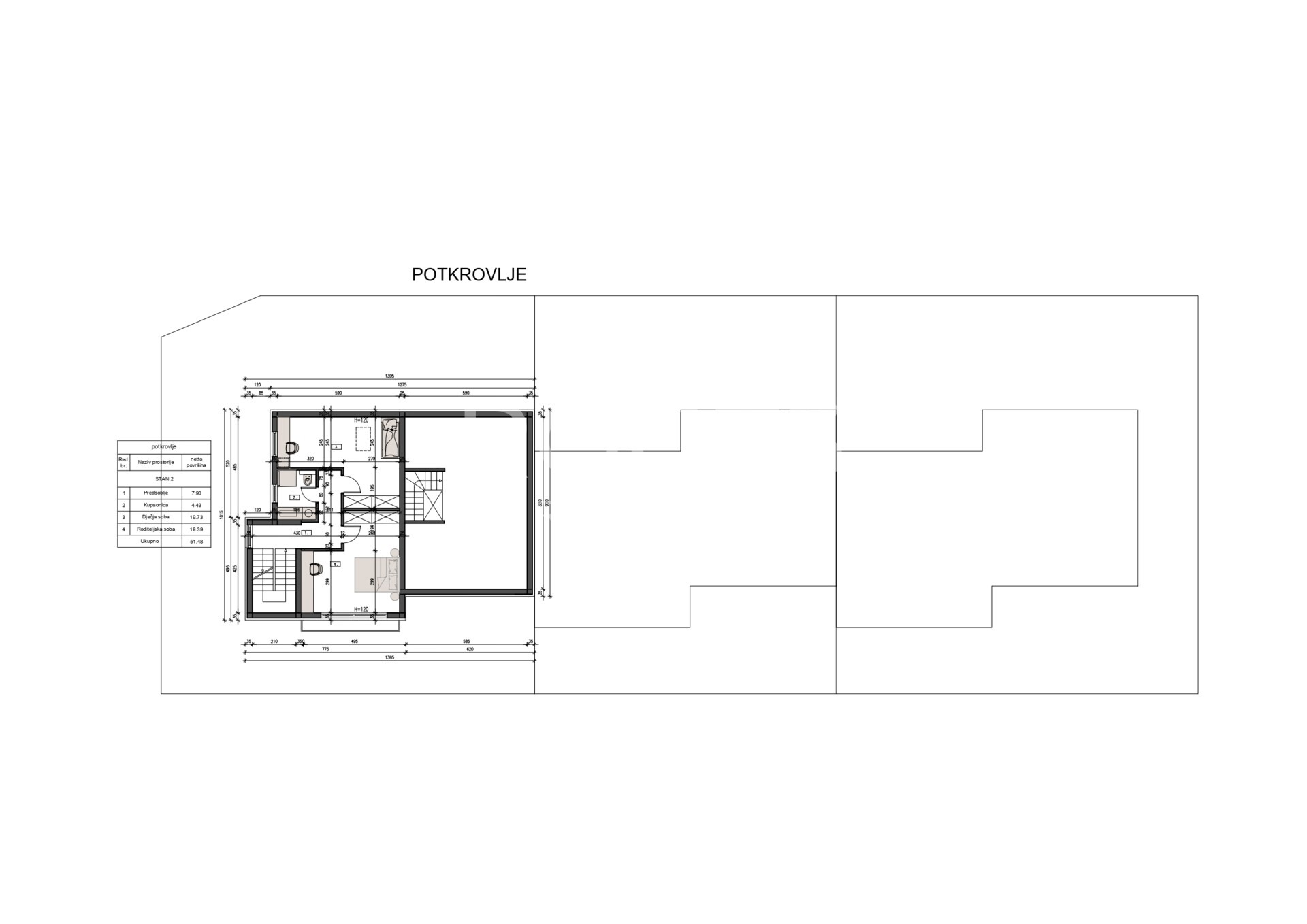
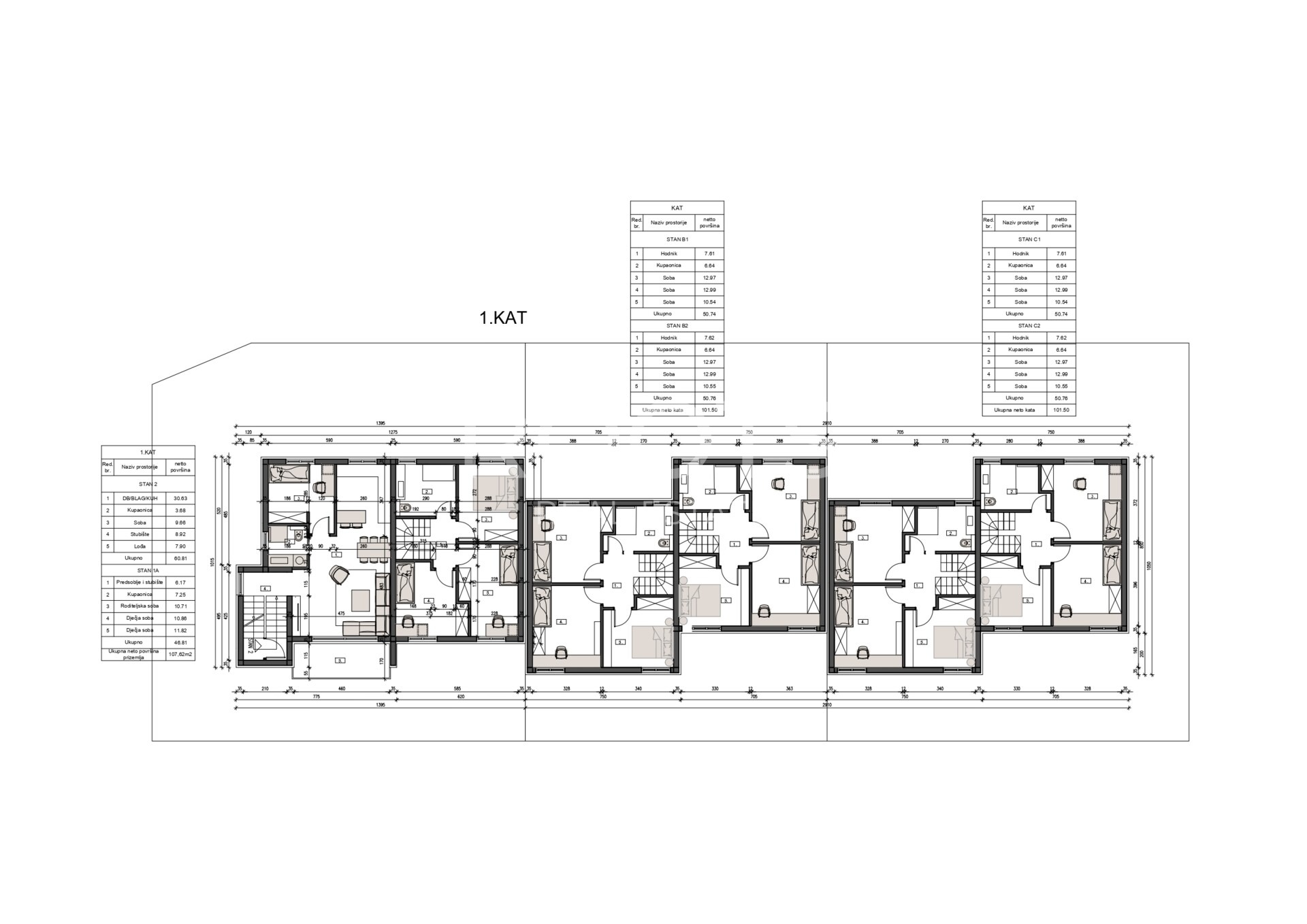
Predviđene zatvorene površine od 103 m2, razvedene u dvije etaže, pri čemu se prva etaža sastoji od ulaznog prostora, kupaonice, kuhinje, blagovaone i dnevnog boravka s izlaskom na vrt, te druga etaža koja se sastoji od predsoblja, tri spavaće sobe i kupaonice.
Kuća B1 – sastoji se od donje etaže ukupne površine 52,04 m2: ulaznog prostora 3,48 m2, kupaonice 4,62 m2, kuhinje, blagovaone i dnevnog boravka površine 43,95 m2 s izlaskom na vrt 24 m2, gornje etaže ukupne površine 50,74 m2: hodnika 7,61 m2, kupaonice 6,64 m2, tri spavaće sobe površina 12,97 m2, 12,99 m2 i 10,54 m2, te vanjsko parkirno mjesto 12,5 m2.
Ukupna obračunska površina kuće iznosi 107,68 m2.
Moderna i kvalitetna gradnja, visoka energetska učinkovitost, ugrađivana oprema prve klase: AB konstrukcija sa termo izo fasadom, podno grijanje, dizalica topline, 2 klima jedinice, parket i keramika 1. klase.
Odlična lokacija sa svim za život bitnim sadržajima unutar 5 minuta pješke.
U ovoj fazi primamo rezervacije do početka gradnje. Preporuka agencije.
Ostale informacije na upit.
Adresa
-
Adresa: Blato, Novi Zagreb - zapad
-
Grad: Zagreb
-
Županija: Grad Zagreb
-
Država: Hrvatska
Pojedinosti
-
ID nekretnine 159-1
-
Cijena 350,000€
-
Kvadratura nekretnine 107.68 m²
-
Spavaće sobe 3
-
Sobe 5
-
Kupaonice 2
-
Godina izgradnje 2026
-
Vrsta nekretnine Kuće
-
Status nekretnine Prodaja
Značajke
Zakažite obilazak
Podaci za kontakt
Pogledajte oglase agenta- Filip Ukalović
- +385 99 589 6145WhatsApp

