Zagreb Mlinovi luksuzna dvojna kuća 220 m2 NOVOGRADNJA 89-1
- 1,235,250€
Opis
Zagreb, Podsljeme, Mlinovi, moderan projekt dvojne kuće koja se gradi prema najvišim standardima na raritenoj mikrolokaciji, zavučena od glave ceste, uz zeleni pojas i potok.
Odlično izveden tlocrt, razveden u tri etaže, ukupne zatvorene površine cca 208 m2 sa vrtom 133 m2. Na minus etaži se nalazi garaža za dva automobila i veliko spremište ukupne površine 50 m2.
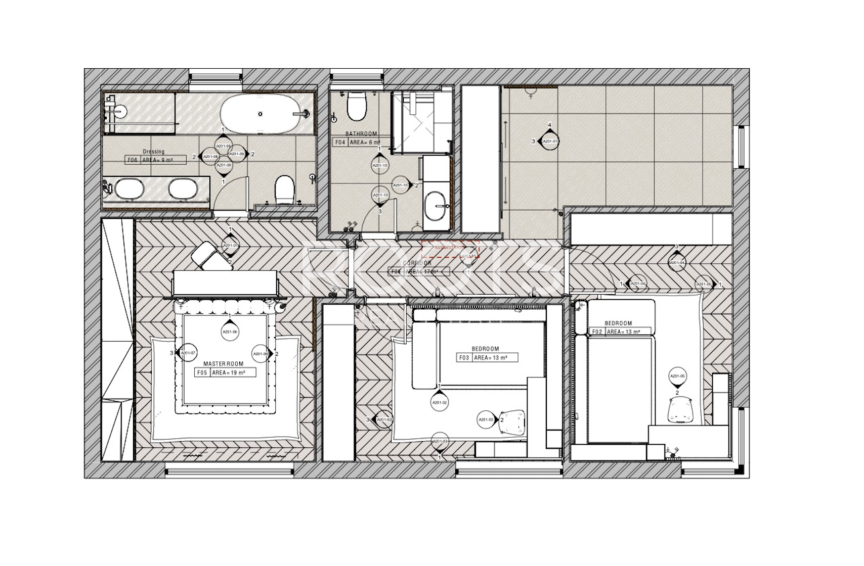
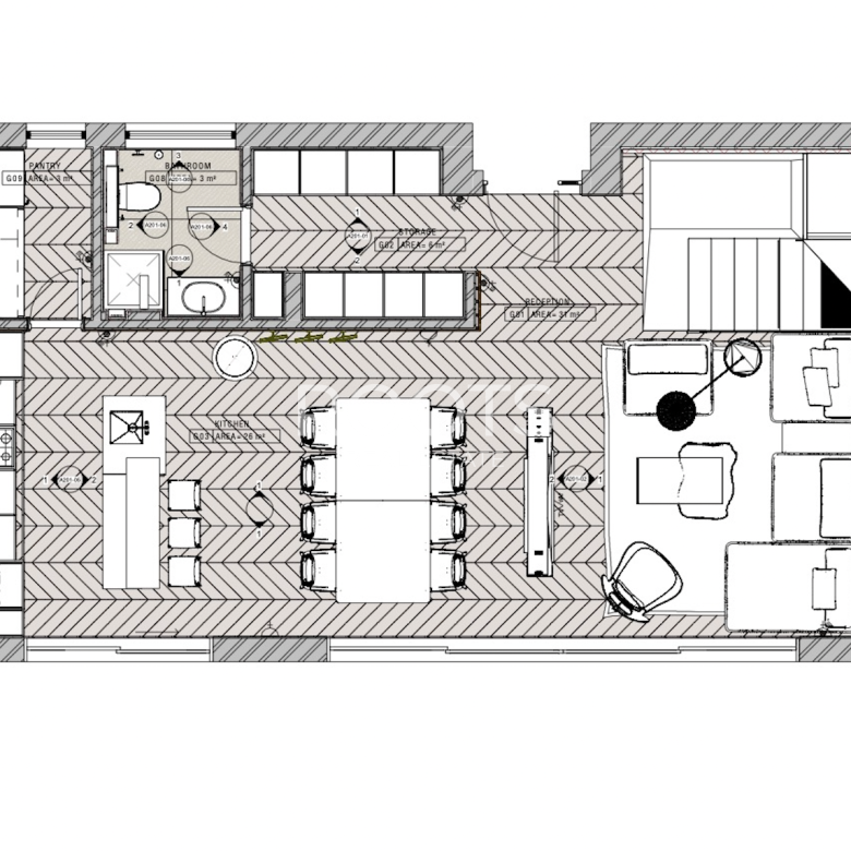
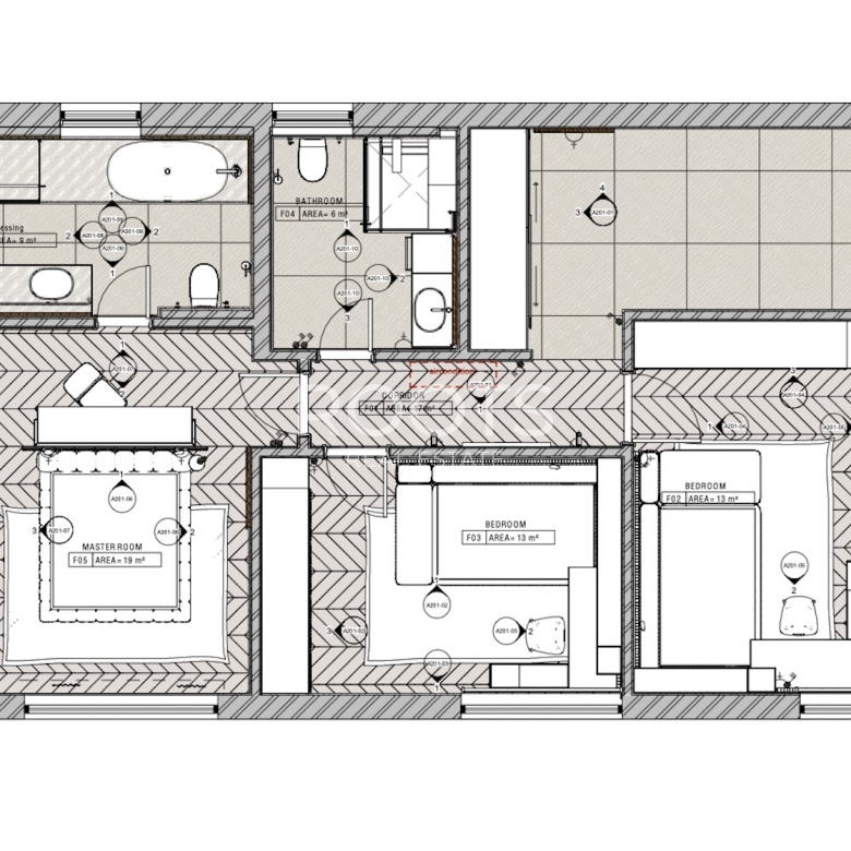
Stambeni prostor u prizemlju od 88 m2 sadrži ulazni hodnik, gostinjski wc, garderobu, veliku kuhinju, blagavonu i dnevni boravak sa izlazom na vrt dok je na drugoj etaži od 70 m2 spavaći dio sa roditeljskom sobom i zasebnom kupaonicom, dodatno 2 dječje sobe i kupaonica te vešeraj.
Tehnologija gradnje i oprema prema najvišim standardima struke, od najbitnijeg izdvajamo:
izolacija temelja, podruma i garaža (Xypex, vodonepropusni beton), vrhunski aluminijski prozori, OTIIMA & Schüco, ventilirana fasada po cijeloj kući, stropni sustav za hlađenje, najnovija generacija sustava za hlađenje, rješenje pametne kuće, imitacija prirodnog kamena na zidovima, visina stropa 310 cm, omekšivač filtera za vodu, sustav podnog grijanja i dizalica topline, kuća je projektirana za dobivanje A+ energetskog certifikata.
Početak gradnje 01/2025. godine, planirani završetak 05/2026. godine. Iskazana cijena je sa PDV-om a u ovoj fazi je moguće napraviti određene preinake u tlocrtu i opremi projekta.
Izuzetna rezidencijalna lokacija okružena ambasadama. Dućani, kafići, škola i vrtić te javni prijevoz na glanoj cesti u neposrednoj blizini.
Preporuka agencije.
Adresa
-
Adresa: Mlinovi, Podsljeme
-
Grad: Zagreb
-
Županija: Grad Zagreb
-
Država: Hrvatska
Pojedinosti
-
ID nekretnine 89-1
-
Cijena 1,235,250€
-
Kvadratura nekretnine 221 m²
-
Spavaće sobe 3
-
Sobe 6
-
Kupaonice 3
-
Godina izgradnje 2026
-
Vrsta nekretnine Kuće
-
Status nekretnine Prodaja
Značajke
- Blizina centra
- Blizina dućana
- Centar mjesta/grada
- Dizalica topline
- Ekskluzivan interijer
- Električne rolete
- Gradski vodovod
- Instalacija za grijanje automobilskog prilaza
- Kada
- Kamin
- Kanalizacija
- Klima uređaj
- Luksuzno
- Miran predio
- Plin
- Podno grijanje
- Projektna dokumentacija
- Protuprovalna vrata
- Punjač za električne automobile
- Smart house
- Struja
- Tuš kabina
- Uređena okućnica
- Velike staklene stijene
- Video nadzor
- Video portafon
- Wi-Fi mreža
Zakažite obilazak
Podaci za kontakt
Pogledajte oglase agenta- Ivan Ukalović
- +385 91 4888 488WhatsApp

