Pretraži
Raspon cijena
  • 290-1
  • ID nekretnine
  • Vrsta nekretnine
  • Stanovi
  • 2
  • Kupaonice
  • 70.09 m²
  • Kvadratura
  • 2026
  • Godina izgradnje

Velika Gorica trosoban stan 70,09 m2 NOVOGRADNJA 290-1

  • 238,306€

Opis

Velika Gorica, trosoban stan 70,09 m2 u modernoj i kvalitetnoj stambenoj novogradnji s 91 stambenom jedinicom, na atraktivnoj lokaciji u neposrednoj blizini križanja Zagrebačke Ulice i Ulice Rudolfa Fizira.
 
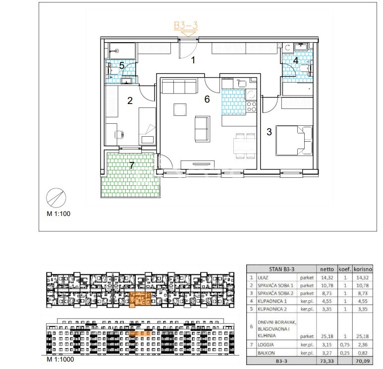
Stan B3-3 – trosoban stan na trećem katu zatvorene površine 66,91 m2 s loggiom 3,15 m2 i natkrivenim balkonom 3,27 m2.
Kvalitetno iskorišten tlocrt, sastoji se od ulaznog hodnika, kuhinje, blagovaone i dnevnog boravka s izlaskom na loggiu i natkriveni balkon, dvije kupaonice i dvije spavaće sobe.
 
Velika Gorica, projekt moderne stambene novogradnje s 91 stambenom jedinicom.
U sklopu zgrade, osigurana su 28 garažnih mjesta na etaži prizemlja, 97 garažnih i parking mjesta na etaži podruma i 57 parking mjesta na nivou terena.
 
Zgrada će biti izgrađena prema visokim standardima struke, što uključuje:
– Armiranobetonska (AB) konstrukcija međusobno povezana zidovima i gredama te punim armiranobetonskim stropnim i ravnim krovnim pločama, fasadni zidovi su armirano betonski, debljine 20 i 25 cm, pregradni zidovi unutar stanova su od gips-kartonskih ploča debljine 10-12,5 cm (obostrano 2 gips kartonske ploče s ispunom od mineralne vune)
– Fasada se izvodi po sistemu ETICS s 12-15 cm mineralne vune ili stiropora EPS F sa završnim slojem od silikonske žbuke
– Vanjska stolarija: velike staklene klizne stijene izvedene su u aluminijskim profilima, manje prozorske površine izvedene su u PVC stolariji, PVC profili proizvođača Kommerling, ostakljena izo LOW-e troslojnim staklom, komarnici mogući uz doplatu
– Unutarnja stolarija: protuprovalna ulazna vrata u stanove, vrhunski protuprovalni cilindar (Kolnoa), vrhunska unutarnja stolarija u bijeloj boji, s obuhvatnim dovratnikom (RV Križevci)
– Podovi ulaznog prostora, hodnika, soba, dnevnog boravka i blagovaonice obloženi su troslojnim parketom od hrasta, visoke kvalitete i modernog dizajna, prilagođenim podnom grijanju, podovi kuhinje, WC-a i kupaonice obloženi su keramičkim pločicama, a terase i lođe protukliznim keramičkim pločicama
– Sanitarije visoke kvalitete renomiranih proizvođača (Laufen), kade ili tuševi s paravanima ili tuš kabinama (doplata za podžbuknu miješalicu i staklenu pregradu)
– Lift
– Video portafon
– Plinsko etažno podno grijanje na kondenzacijski bojler
– Klima uređaji u dnevnom boravku, dodatne unutarnje jedinice po sobama predviđene u određenim stanovima
– Energetski razred A / A+
 
Obavezna kupnja garažnog mjesta na -1 etaži po cijeni od 25.000,00 EUR ili garažnog mjesta na 0 etaži po cijeni od 30.000,00 EUR zajedno s parkirnim garažnim mjestom po cijeni od 18.000,00 EUR ili vanjskim parkirnim mjestom po cijeni od 10.000,00 EUR.
 
Odlična lokacija, blizina javnog prijevoza, škole, vrtića, trgovina i ostalih za život bitnih sadržaja.
 
Useljenje ljeto 2027. godine.
Za sve ostale informacije, budite nas slobodni kontaktirati.

Tlocrt nekretnine

 

Adresa

  • Adresa: Centar, Velika Gorica
  • Grad: Velika Gorica
  • Županija: Zagrebačka
  • Država: Hrvatska

Pojedinosti

  • ID nekretnine 290-1
  • Cijena 238,306€
  • Kvadratura nekretnine 70.09 m²
  • Spavaće sobe 2
  • Sobe 3
  • Kupaonice 2
  • Godina izgradnje 2026
  • Vrsta nekretnine Stanovi
  • Status nekretnine Prodaja

Zakažite obilazak

Vrsta obilaska

Podaci za kontakt

Pogledajte oglase agenta
Filip Ukalović

Upit za ovu nekretninu

Compare listings

Compare