Zagreb Trešnjevka trosoban stan 67 m2 NOVOGRADNJA 196-1
- 380,000€
Opis
Zagreb, Trešnjevka – Sjever, moderan i funkcionalan trosoban stan 67 m2 NKP u kvalitetnoj stambenoj novogradnji s liftom i ukupno šest stambenih jedinica, smješten na izuzetno traženoj lokaciji u neposrednoj blizini križanja Selske ceste i Zagorske ulice.
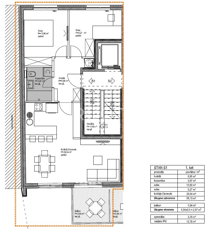
Stan S1 – trosoban stan na prvom katu, zatvorene površine 59,2 m2 s natkrivenim balkonom 5,94 m2, spremištem 3,76 m2 i vanjskim parkirnim mjestom.
Odličan raspored prostorija, stan se sastoji od ulaznog hodnika, kuhinje povezane s dnevnim boravkom i izlazom na natkriveni balkon, dvije spavaće sobe te kupaonice.
Zgrada se gradi prema visokim standardima gradnje i opreme, uključujući: smart home sustav, podno grijanje kroz cijeli stan, dizalica topline za svaki stan, Schindler lift, ulazna protuprovalna/protupožarna/protudimna vrata, visina stropa 279 cm, višeslojni hrastov parket po cijelom stanu, velike staklene stijene u ravnini poda, trostruka IZO stakla, električne rolete i komarnici na svim otvorima, unutarnja stolarija sa skrivenim pantima i magnetskim bravama, zaseban priključak i priprema za punjače za električna vozila, visokokvalitetna toplinska izolacija – 15 cm kamene vune.
Lokacija nudi neposrednu blizinu javnog prijevoza, parkova, škola, vrtića, trgovina i svih sadržaja potrebnih za ugodan obiteljski život.
Svi stanovi prodaju se u sustavu PDV-a, južne su orijentacije s velikim staklenim površinama koje osiguravaju obilje prirodnog svjetla te uključuju vanjsko parkirno mjesto i spremište.
Planirani završetak izgradnje: svibanj 2026. godine.
Za dodatne informacije i dogovor oko razgledavanja, slobodno nas kontaktirajte.
Adresa
-
Adresa: Trešnjevka, Trešnjevka - sjever
-
Grad: Zagreb
-
Županija: Grad Zagreb
-
Država: Hrvatska
Pojedinosti
-
ID nekretnine 196-1
-
Cijena 380,000€
-
Kvadratura nekretnine 66.6 m²
-
Spavaće sobe 2
-
Sobe 3
-
Kupaonica 1
-
Godina izgradnje 2026
-
Vrsta nekretnine Stanovi
-
Status nekretnine Prodaja
Značajke
- ADSL Internet
- Aktivna telefonska linija
- Blizina dućana
- Blizina škole
- Dizalica topline
- Električne rolete
- Gradski vodovod
- IT mreža
- Javni parking - besplatni
- Kabelska TV
- Kanalizacija
- Klima uređaj
- Lift
- Plin
- Podno grijanje
- Prilaz - asfaltirani
- Protuprovalna vrata
- Punjač za električne automobile
- Satelitska TV
- Smart house
- Struja
- Tuš kabina
- Video portafon
- Wi-Fi mreža
Zakažite obilazak
Podaci za kontakt
Pogledajte oglase agenta- Filip Ukalović
- +385 99 589 6145WhatsApp

