Zagreb Kaptol luksuzan stan 120 m2 NOVOGRADNJA 188-1
- 885,000€
Opis
Zagreb, Kaptol, Medvedgradska ulica, luksuzan trosoban stan u izuzetnoj novogradnji s liftom i garažnim parking mjestom.
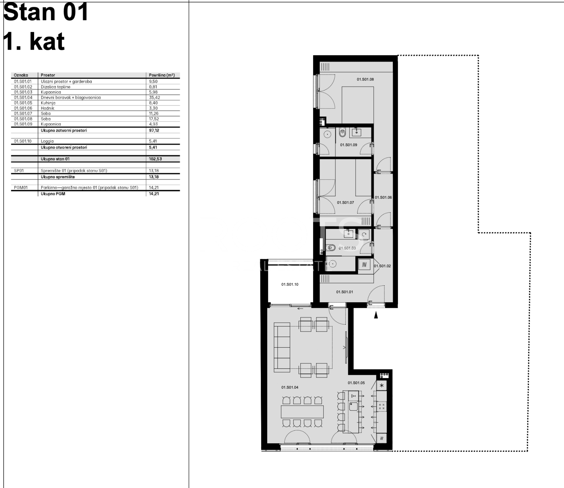
Stan se sastoji od ulaznog hodinka, velikog dnevnog dijela sa loggi-om na dvorišnu i velikim otvorima na uličnu stranu, dvije komforne spavaće sobe i dvije velike kupaonice. Zatvorena površina stana iznosi 97 m2, pripada mu spremište i garažno parking mjesto u prizemlju zgrade. Ukupno 120 m2 neto prodajne površine.
Izvrsna oprema i kvaliteta gradnje, stopno grijanje i hlađenje na dizalicu topline, smart home sistem, aluminij stolarija, ventilirajuća fasada, lift, keramika, sanitarije i parketi sve vrhunske kvalitete.
Izuzetna lokacija u centru grada, tramvaj zona. Nekretnina u sustavu PDV-a.
Ostale informacije na upit.
Adresa
-
Adresa: Kaptol, Gornji Grad - Medveščak
-
Grad: Zagreb
-
Županija: Grad Zagreb
-
Država: Hrvatska
Pojedinosti
-
ID nekretnine 188-1
-
Cijena 885,000€
-
Kvadratura nekretnine 120 m²
-
Spavaće sobe 2
-
Sobe 3
-
Kupaonice 2
-
Godina izgradnje 2025
-
Vrsta nekretnine Izdvojena nekretnina, Stanovi
-
Status nekretnine Prodaja
Zakažite obilazak
Podaci za kontakt
Pogledajte oglase agenta- Ivan Ukalović
- +385 91 4888 488WhatsApp

