Zagreb Jelenovac S3 luksuzan trosoban stan 94 m2 NOVOGRADNJA 155-1
- 575,000€
Opis
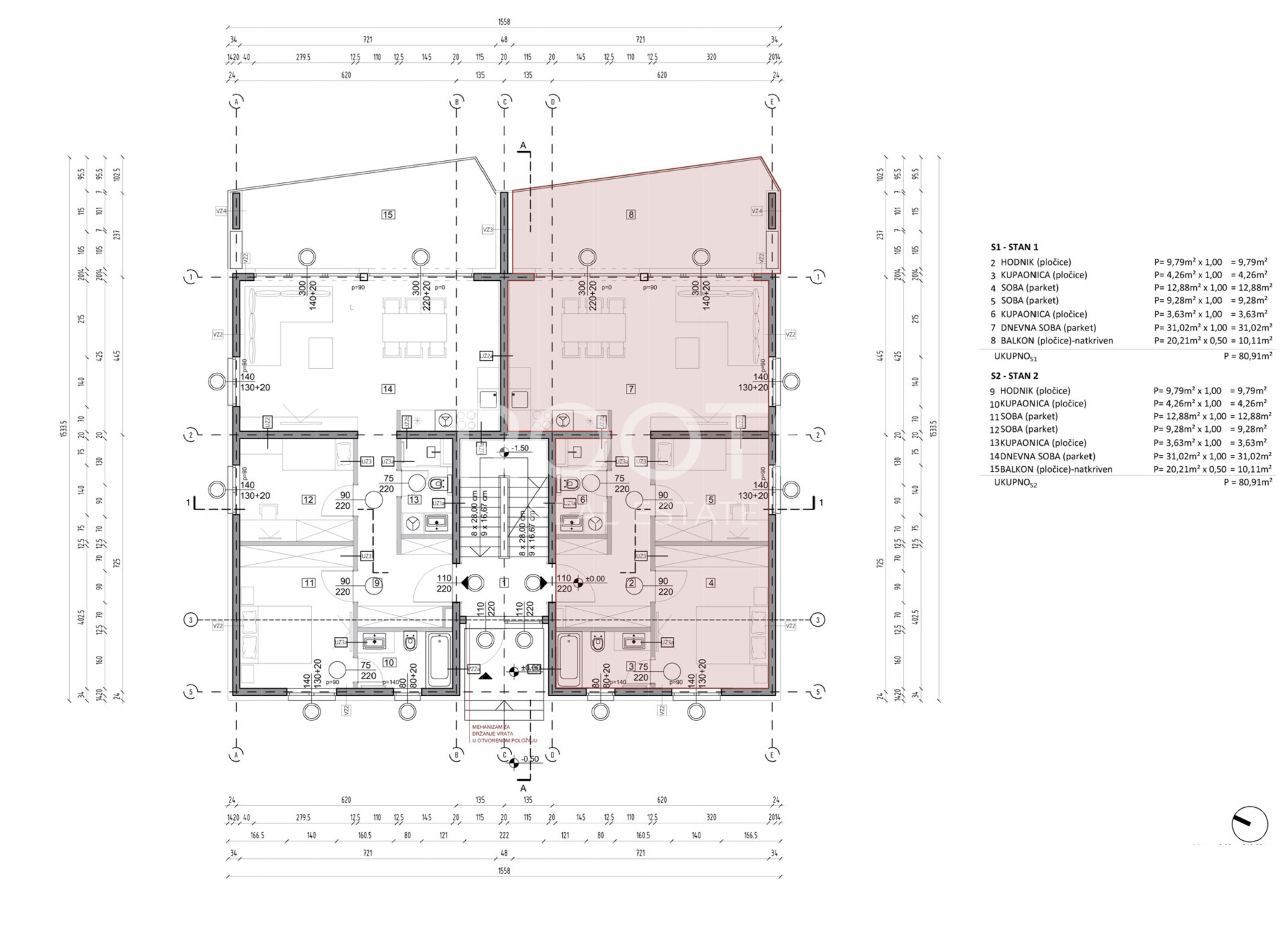
Zagreb, Črnomerec, Jelenovac moderna, luksuzna stambena novogradnja s 4 stambene jedinice, garažama i vanjskim parking mjestom. Novogradnja građena prema najvišim standardima struke s vrhunskom opremom i detaljima.
Svakom od stanova pripada jedno garažno parkirno mjesto s spremištem 18 m2 i jedno vanjsko parking mjesto.
Oprema je izvrsna, od parketa i keramike A klase po izboru kupca, aluminij stolarija, elektro “pametne” rolete, svaka soba s jedinicom klime, sustav grijanja kroz dizalicu topline i podno grijanje kroz cijeli stan. Visina strop 280 cm, visoka energetska učinkovitost. Veliki otvori i prekrasni pogledi iz svih staniva.
Stan S3 na drugom katu – 71 m2 stambenog prostora, s prekrasnom terasom od 20 m2, garažnim parking mjestom i vanjskim parking mjestom. Ukupna prodajna površina cca 94,2 m2. Tlocrti su maksimalno iskorišteni, ulazni hodnik, 2 spavaće sobe, 2 kupaonice, veliki dnevni dio sa otvorima i loggia-ma.
Izvrsna lokacija, maksimalni mir i zelenilo, prekrasan panoramski pogled iz svih jedinica. Pregršt dnevnog svjetla.
Preporuka agencije.
Ostale informacije na upit.
Adresa
-
Adresa: Jelenovac, Črnomerec
-
Grad: Zagreb
-
Županija: Grad Zagreb
-
Država: Hrvatska
Pojedinosti
-
ID nekretnine 155-1
-
Cijena 575,000€
-
Kvadratura nekretnine 94.2 m²
-
Spavaće sobe 2
-
Sobe 3
-
Kupaonice 2
-
Godina izgradnje 2025
-
Vrsta nekretnine Stanovi
-
Status nekretnine Prodaja
Značajke
- ADSL Internet
- Aktivna telefonska linija
- Alarm
- Blizina centra
- Blizina škole
- Centar mjesta/grada
- Dizalica topline
- Električne rolete
- Gradski vodovod
- Javni parking - besplatni
- Kabelska TV
- Kada
- Kanalizacija
- Klima uređaj
- Luksuzno
- Miran predio
- Plin
- Podno grijanje
- Pogled panoramski
- Prilaz - asfaltirani
- Protuprovalna vrata
- Punjač za električne automobile
- Satelitska TV
- Smart house
- Struja
- Tuš kabina
- Velika terasa
- Velike staklene stijene
- Video nadzor
- Video portafon
Zakažite obilazak
Podaci za kontakt
Pogledajte oglase agenta- Ivan Ukalović
- +385 91 4888 488WhatsApp

