Pretraži
Raspon cijena
  • 324-1
  • ID nekretnine
  • Vrsta nekretnine
  • Stanovi
  • 1
  • Kupaonica
  • 56.17 m²
  • Kvadratura
  • 2026
  • Godina izgradnje

Velika Gorica trosoban stan 56,17 m2 NOVOGRADNJA 324-1

  • 190,978€

Opis

Velika Gorica, trosoban stan 56,17 m2 u modernoj i kvalitetnoj stambenoj novogradnji s 22 stambene jedinice, na atraktivnoj lokaciji u neposrednoj blizini križanja Zagrebačke Ulice i Ulice Rudolfa Fizira.
 
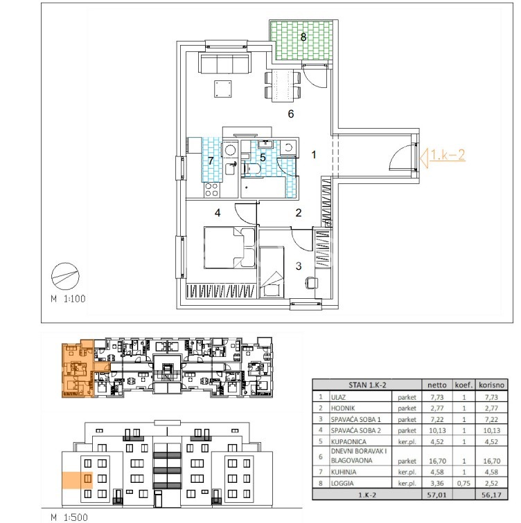
Stan 1K-2 – trosoban stan na prvom katu zatvorene površine 53,65 m2 s loggiom 3,36 m2.
Kvalitetno iskorišten tlocrt, sastoji se od ulaznog hodnika, kuhinje, blagovaone i dnevnog boravka s izlaskom na loggiu, kupaonice i dvije spavaće sobe.
 
Velika Gorica, projekt moderne stambene novogradnje s 22 stambene jedinice.
U sklopu zgrade, osigurana su 36 garažnih mjesta na etaži podruma i 8 parking mjesta na nivou terena.
 
Zgrada će biti izgrađena prema visokim standardima struke, što uključuje:
– Armiranobetonska (AB) konstrukcija međusobno povezana zidovima i gredama te punim armiranobetonskim stropnim i ravnim krovnim pločama, fasadni zidovi su armirano betonski, debljine 20 i 25 cm, pregradni zidovi unutar stanova su od gips-kartonskih ploča debljine 10-12,5 cm (obostrano 2 gips kartonske ploče s ispunom od mineralne vune)
– Fasada se izvodi po sistemu ETICS s 12-15 cm mineralne vune ili stiropora EPS F sa završnim slojem od silikonske žbuke
– Vanjska stolarija: velike staklene klizne stijene izvedene su u aluminijskim profilima, manje prozorske površine izvedene su u PVC stolariji, PVC profili proizvođača Kommerling, ostakljena izo LOW-e troslojnim staklom, komarnici mogući uz doplatu
– Unutarnja stolarija: protuprovalna ulazna vrata u stanove, vrhunski protuprovalni cilindar (Kolnoa), vrhunska unutarnja stolarija u bijeloj boji, s obuhvatnim dovratnikom (RV Križevci)
– Podovi ulaznog prostora, hodnika, soba, dnevnog boravka i blagovaonice obloženi su troslojnim parketom od hrasta, visoke kvalitete i modernog dizajna, prilagođenim podnom grijanju, podovi kuhinje, WC-a i kupaonice obloženi su keramičkim pločicama, a terase i lođe protukliznim keramičkim pločicama
– Sanitarije visoke kvalitete renomiranih proizvođača (Laufen), kade ili tuševi s paravanima ili tuš kabinama (doplata za podžbuknu miješalicu i staklenu pregradu)
– Lift
– Video portafon
– Plinsko etažno podno grijanje na kondenzacijski bojler
– Klima uređaji u dnevnom boravku, dodatne unutarnje jedinice po sobama predviđene u određenim stanovima
– Energetski razred A / A+
 
Uz kupnju stana obvezna je kupnja garažnog mjesta te dodatno garažnog ili vanjskog parkirnog mjesta.
 
Odlična lokacija, blizina javnog prijevoza, škole, vrtića, trgovina i ostalih za život bitnih sadržaja.
 
Useljenje ljeto 2027. godine.
Za sve ostale informacije, budite nas slobodni kontaktirati.

Tlocrt nekretnine

 

Adresa

  • Adresa: Centar, Velika Gorica
  • Grad: Velika Gorica
  • Županija: Zagrebačka
  • Država: Hrvatska

Pojedinosti

  • ID nekretnine 324-1
  • Cijena 190,978€
  • Kvadratura nekretnine 56.17 m²
  • Spavaće sobe 2
  • Sobe 3
  • Kupaonica 1
  • Godina izgradnje 2026
  • Vrsta nekretnine Stanovi
  • Status nekretnine Prodaja

Zakažite obilazak

Vrsta obilaska

Podaci za kontakt

Pogledajte oglase agenta
Filip Ukalović

Upit za ovu nekretninu

Compare listings

Compare