Velika Gorica dvosoban stan 49,56 m2 NOVOGRADNJA 263-1
- 168,504€
Opis
Velika Gorica, dvosoban stan 49,56 m2 u modernoj i kvalitetnoj stambenoj novogradnji s 91 stambenom jedinicom, na atraktivnoj lokaciji u neposrednoj blizini križanja Zagrebačke Ulice i Ulice Rudolfa Fizira.
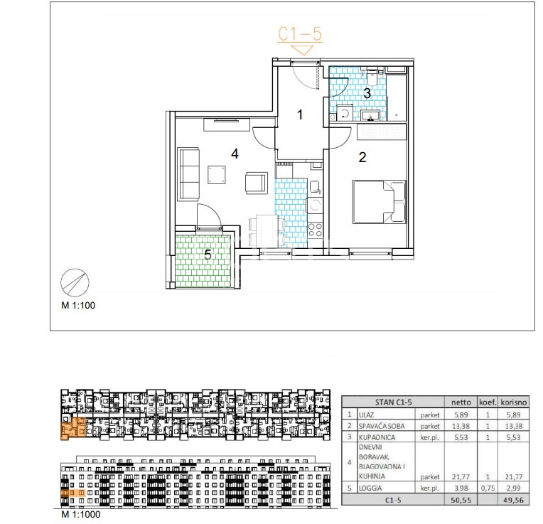
Stan C1-5 – dvosoban stan na prvom katu zatvorene površine 46,57 m2 s loggiom 3,98 m2.
Kvalitetno iskorišten tlocrt, sastoji se od ulaznog hodnika, kuhinje, blagovaone i dnevnog boravka s izlaskom na loggiu, kupaonice i spavaće sobe.
Velika Gorica, projekt moderne stambene novogradnje s 91 stambenom jedinicom.
U sklopu zgrade, osigurana su 28 garažnih mjesta na etaži prizemlja, 97 garažnih i parking mjesta na etaži podruma i 57 parking mjesta na nivou terena.
Zgrada će biti izgrađena prema visokim standardima struke, što uključuje:
– Armiranobetonska (AB) konstrukcija međusobno povezana zidovima i gredama te punim armiranobetonskim stropnim i ravnim krovnim pločama, fasadni zidovi su armirano betonski, debljine 20 i 25 cm, pregradni zidovi unutar stanova su od gips-kartonskih ploča debljine 10-12,5 cm (obostrano 2 gips kartonske ploče s ispunom od mineralne vune)
– Fasada se izvodi po sistemu ETICS s 12-15 cm mineralne vune ili stiropora EPS F sa završnim slojem od silikonske žbuke
– Vanjska stolarija: velike staklene klizne stijene izvedene su u aluminijskim profilima, manje prozorske površine izvedene su u PVC stolariji, PVC profili proizvođača Kommerling, ostakljena izo LOW-e troslojnim staklom, komarnici mogući uz doplatu
– Unutarnja stolarija: protuprovalna ulazna vrata u stanove, vrhunski protuprovalni cilindar (Kolnoa), vrhunska unutarnja stolarija u bijeloj boji, s obuhvatnim dovratnikom (RV Križevci)
– Podovi ulaznog prostora, hodnika, soba, dnevnog boravka i blagovaonice obloženi su troslojnim parketom od hrasta, visoke kvalitete i modernog dizajna, prilagođenim podnom grijanju, podovi kuhinje, WC-a i kupaonice obloženi su keramičkim pločicama, a terase i lođe protukliznim keramičkim pločicama
– Sanitarije visoke kvalitete renomiranih proizvođača (Laufen), kade ili tuševi s paravanima ili tuš kabinama (doplata za podžbuknu miješalicu i staklenu pregradu)
– Lift
– Video portafon
– Plinsko etažno podno grijanje na kondenzacijski bojler
– Klima uređaji u dnevnom boravku, dodatne unutarnje jedinice po sobama predviđene u određenim stanovima
– Energetski razred A / A+
Obavezna kupnja garažnog mjesta na -1 etaži po cijeni od 25.000,00 EUR ili garažnog mjesta na 0 etaži po cijeni od 30.000,00 EUR zajedno s parkirnim garažnim mjestom po cijeni od 18.000,00 EUR ili vanjskim parkirnim mjestom po cijeni od 10.000,00 EUR.
Odlična lokacija, blizina javnog prijevoza, škole, vrtića, trgovina i ostalih za život bitnih sadržaja.
Useljenje ljeto 2027. godine.
Za sve ostale informacije, budite nas slobodni kontaktirati.
Adresa
-
Adresa: Centar, Velika Gorica
-
Grad: Velika Gorica
-
Županija: Zagrebačka
-
Država: Hrvatska
Pojedinosti
-
ID nekretnine 263-1
-
Cijena 168,504€
-
Kvadratura nekretnine 49.56 m²
-
Spavaća soba 1
-
Sobe 2
-
Kupaonica 1
-
Godina izgradnje 2026
-
Vrsta nekretnine Stanovi
-
Status nekretnine Prodaja
Značajke
- ADSL Internet
- Aktivna telefonska linija
- Blizina centra
- Blizina dućana
- Blizina škole
- Centralno etažno plinsko
- Električne rolete
- Gradski vodovod
- Javni parking - besplatni
- Kabelska TV
- Kada
- Kanalizacija
- Klima uređaj
- Lift
- Miran predio
- Plin
- Podno grijanje
- Prilaz - asfaltirani
- Protuprovalna vrata
- Satelitska TV
- Struja
- Tuš kabina
- Velike staklene stijene
- Video portafon
- Wi-Fi mreža
Zakažite obilazak
Podaci za kontakt
Pogledajte oglase agenta- Filip Ukalović
- +385 99 589 6145WhatsApp

