Stupnik Gornjostupnička ulica novoizgrađena hala 1300 m2 119-1
- 13,000€
Opis
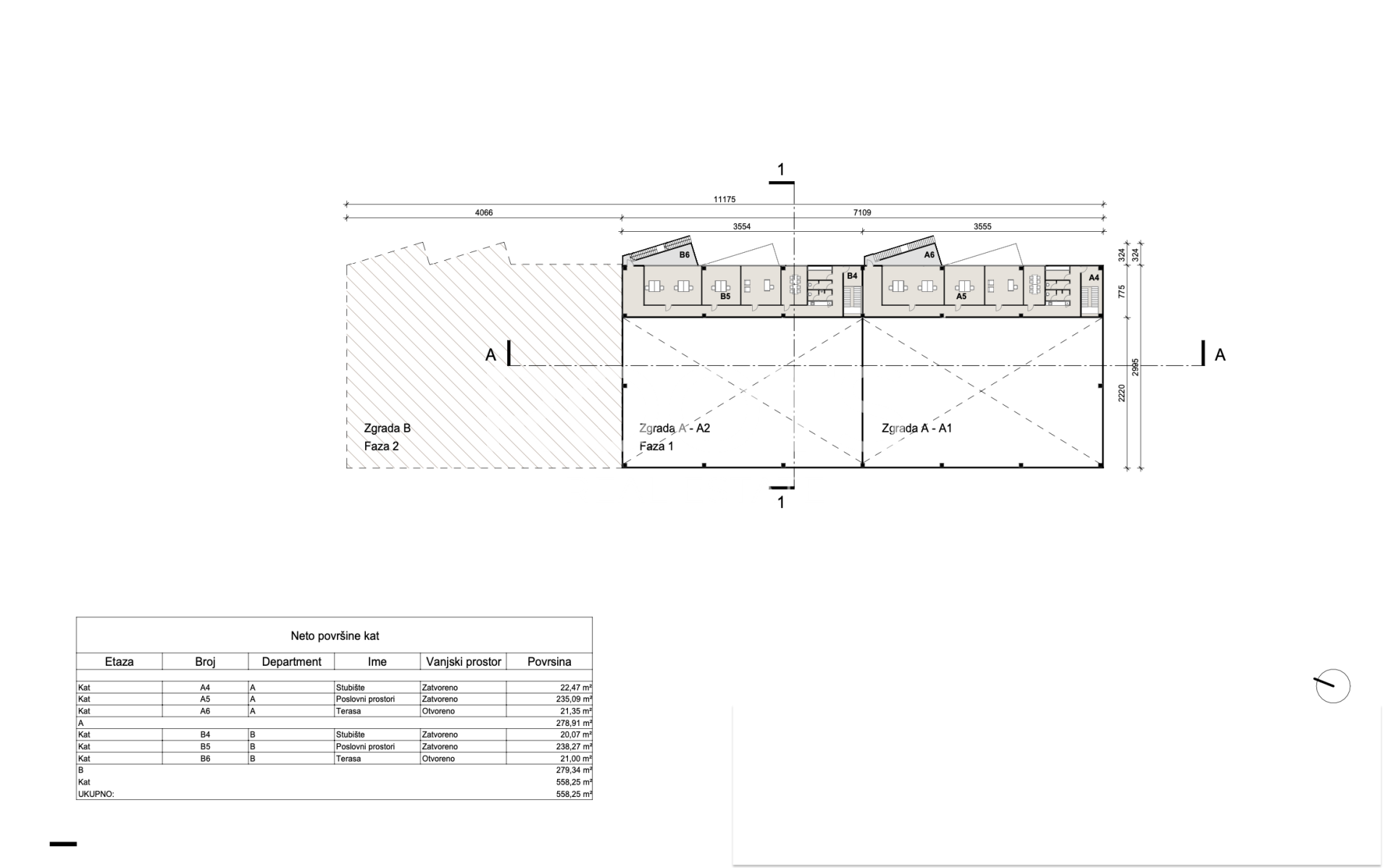
Zagrebačka županija, Stupnik, Gornjostupnička ulica, projekt hale sa uredima u početnoj fazi izgradnje odmah uz glavnu prometnicu na zemljištu površine cca 9.000 m2.
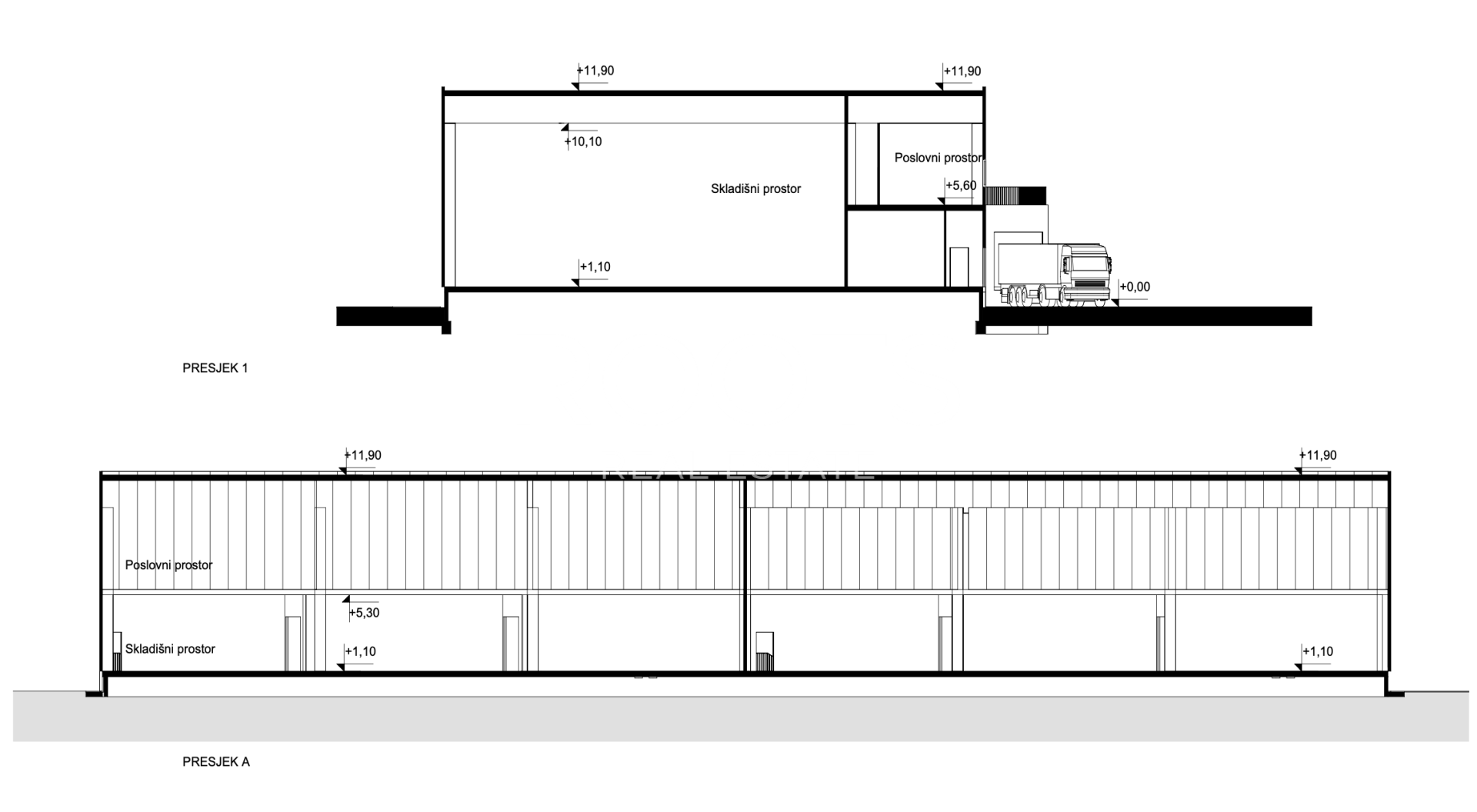
Projekt se gradi u dvije faze, prva faza uključuje 1000 m2 skladišnog prostora, prateće prostorije i stubište ( ukupno 80 m2 ) u prizemlju dok se na prvom katu nalazi uredski poslovni prostor od 240 m2 sa terasom 21 m2. Visina hale 12 metara.
U prvoj fazi budući zakupoprimac može kreirati poslovni prostor prema vlastitim potrebama. Izvrsna lokacija, uz glavnu prometnicu, blizina brze ceste i autoputa na Lučkom.
Početak radova 12/25., dok se završetak očekuje 10/26.
Dodatno, mogućnost proširenja kroz drugu fazu na dodatnih 1200 m2 skladišnog prostora i 300 m2 uredskog, sve u istom konceptu prema fazi 1.
Preporuka agencije. Ostale informacije na upit.
Adresa
-
Adresa: , Gornji Stupnik
-
Grad: Stupnik
-
Županija: Zagrebačka
-
Država: Hrvatska
Pojedinosti
-
ID nekretnine 119-1
-
Cijena 13,000€
-
Kvadratura nekretnine 1300 m²
-
Sobe 8
-
Godina izgradnje 2025
-
Vrsta nekretnine Poslovni prostori
-
Status nekretnine Najam
Značajke
- ADSL Internet
- Aktivna telefonska linija
- Alarm
- Blizina centra
- Centar mjesta/grada
- Centralni klima uređaj
- Gradski vodovod
- IT mreža
- Kanalizacija
- Klima uređaj
- Namješteno
- Opremljena kuhinja
- Osiguranje 24 h
- Perilica posuđa
- Plin
- Prilaz - asfaltirani
- Protuprovalna vrata
- Struja
- Ugradbeni ormari
- Video nadzor
- Video portafon
- Više parkirnih mjesta
- Wi-Fi mreža
- Zasebni ulaz u objekt
Zakažite obilazak
Podaci za kontakt
Pogledajte oglase agenta- Ivan Ukalović
- +385 91 4888 488WhatsApp

